硅酮密封胶已广泛用在幕墙、门窗、中空玻璃及室内装饰等建筑领域,起到粘结和密封作用。在应用过程中,我们会接触到结构胶、中空胶、耐候胶、防火胶等概念。这些不同类型的密封胶分别起到怎样的作用?怎样进行分类的?这期白云在线文章将从用途的角度来给大家介绍建筑硅酮密封胶的分类。
建筑硅酮密封胶根据用途,大致可分为以下五类:硅酮结构密封胶、硅酮耐候密封胶、普通硅酮密封胶、中空玻璃用二道硅酮密封胶、特殊用途硅酮密封胶。
一、硅酮结构密封胶
用途:主要用于玻璃与铝副框的结构粘接(见图1)、也用于隐框幕墙中空玻璃的二道密封。
特点:承受风荷载、重力荷载,对强度、耐老化性要求高,弹性有一定要求。
二、硅酮耐候密封胶
用途:幕墙接缝密封作用(见图1),保证幕墙的气密性、水密性等性能。
特点:需承受较大接缝宽窄变化,弹性(位移能力)、耐老化性要求高,不要求强度,高模量、低模量均可。

图1:幕墙局部剖面图
三、普通硅酮密封胶
用途:门窗接缝、外墙填缝及其他位置密封(见图2)。
特点:承受接缝宽窄变化,有一定的位移能力要求,不要求强度。

图2:住宅门窗
四、中空玻璃用二道硅酮密封胶
用途:中空玻璃二道密封,保证中空玻璃结构稳定(见图3)。
特点:模量高,不要太软,有些有结构要求。

图3:中空玻璃
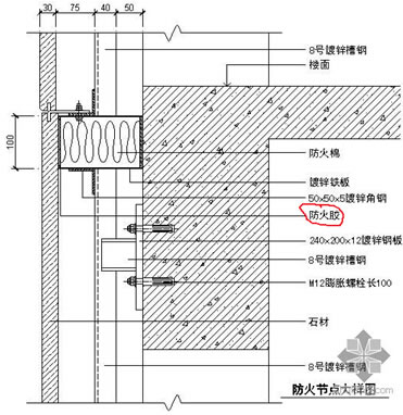
五、特殊用途硅酮密封胶
用途:用于有特殊要求的接缝密封,例如防火(见图4)、防霉(见图5)等。
特点:需具备某种特殊性能(如防霉、防火等)。

图4:幕墙防火隔断密封胶需具备防火性能

图5:厨房、卫浴的接缝密封胶需具备防霉性能
通过上述介绍,相信大家了解到建筑硅酮胶的各类用途,根据不同的用途特点,正确选用建筑硅酮密封胶。不同用途的硅酮密封胶有其各自不同的性能特点。一般情况下,它们相互之间不能随意代替使用。比如用耐候密封胶代替结构密封胶使用、用门窗密封胶代替耐候密封胶使用等,用错胶可能会导致工程出现严重的质量事故和安全事故。明天的白云在线文章将给大家继续介绍建筑硅酮密封胶另一种分类形式,根据固化类型的分类,帮助您了解到不同固化类型硅酮密封胶的特点和用途,敬请关注。
回答时间:2015-8-13