本篇文章内容由[中国幕墙网ALwindoor.com]编辑部整理发布:
摘要:本文结合深圳中金大厦单元幕墙工程案例介绍了平面转折单元式幕墙系统的设计重点,特别是针对单元系统构造、单元系统防水、结构连接设计等做了重点介绍,并简单陈述了其龙骨结构的整体受力分析。
关键词:单元幕墙;几字形锯齿;内平开窗(词条“平开窗”由行业大百科提供);结构分析

1、引言
在当代建筑行业,建筑表皮通过引入更多折线、弧线和不规则线条等几何变化要素,形成立体感和韵律强烈的肌理表皮,不仅可以表现建筑的不同质感,同时也使建筑呈现多样的视觉效果。通过多段折线形成平面转折的幕墙,因其造型美观、层次感强烈,在建筑表皮上的应用越来越多。然而平面转折幕墙在设计及施工方面均有一定的难度,尤其是平面转折单元式幕墙,需要设计人员对于上述幕墙设计有一些深入的研究。本文结合深圳中金大厦单元幕墙工程案例,针对平面转折单元式幕墙系统的设计进行分析和总结,供广大幕墙工程设计人员参考。

2、工程概述
中金大厦位于深圳南山后海中心区,毗邻科苑大道与海德三道,是企业办公总部大楼,幕墙面积约3.25万平方米,建成后将成为后海中心区的标志性建筑。项目主要由1栋30层高153m的塔楼(词条“塔楼”由行业大百科提供)和3层16.2m高的裙楼组成。幕墙系统分布主要有塔楼标准单元幕墙、塔楼东北侧索网幕墙、4-5层竖隐横明框架式幕墙、裙楼玻璃肋全玻幕墙、主入口媒体树双曲玻璃幕墙、裙房采光顶幕墙等。(图1.1~1.2)

本工程外立面体型较为复杂,建筑师以“大树”的设计理念体现在建筑的各个部位,宛如林间光影交错的大堂、树皮般遒劲的塔楼外立面、高木林立的空中大堂、充满未来感的媒体树等,下面笔者主要针对中金大厦塔楼单元幕墙系统的设计要点进行介绍和分析。
3、单元式幕墙系统设计介绍
3.1 单元构造组成
标准单元板块分格尺寸1800mm(宽)x4500mm(高),横截面呈几字形锯齿状,板块最大厚度尺寸达650mm,板块重量约900kg(图2)。标准单元立面由中横梁划分为2块玻璃,其中层间玻璃配置为8半钢化+1.52PVB+8半钢化+12A+8钢化夹胶中空(词条“中空”由行业大百科提供)超白玻璃,大面玻璃配置为8半钢化+1.52PVB+8半钢化+12A+10钢化夹胶中空超白玻璃,玻璃带悬挑夹层渐变尺寸的飞边设计,上下左右板块玻璃飞边斜向均相反,整体呈现交错布置的美感(图3.1~3.2)。飞边玻璃需要考虑除膜工艺,玻璃侧边外包装饰封边板,装饰封边板在横梁扣盖位置局部加宽,用于遮挡扣盖端部,呈现出设计的精致感(图4)。
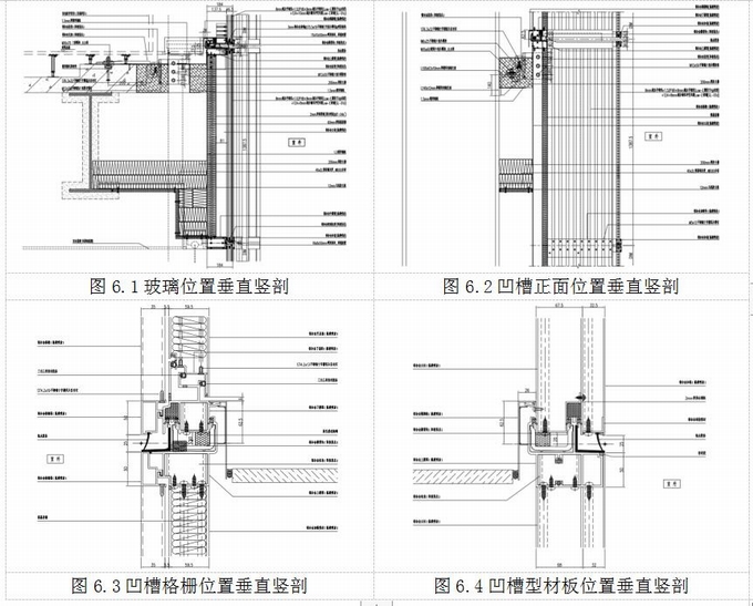
锯齿板块侧面凹槽一侧为竖向通风格栅,内平开窗(词条“窗”由行业大百科提供)隐藏于竖向通风格栅后方室内侧,除平开窗外其余位置为加强型材;凹槽另一侧为铝合金型材面板,上面设有通长线槽用于隐藏灯光走线。标准单元水平横剖节点(词条“节点”由行业大百科提供)做法见图5.1~5.2,垂直竖剖节点做法见图6.1~6.4。





3.2通风格栅及内平开窗设计
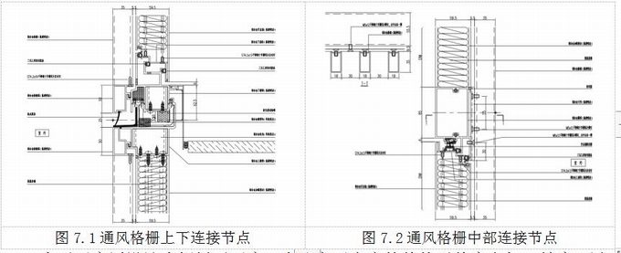
本项目单元通风为隐藏式内平开窗,置于凹槽一侧通风格栅后方,从而保持了立面的整体性和简洁。通风格栅为18mm宽矩形截面,净间距30竖向布置,为提高格栅的安装精度和质量,格栅做成组件形式,待内侧立柱横梁间拼缝防水处理好后再进行成榀挂装,在中横梁位置通过卡件固定,同时起到防跳脱作用(图7.1~7.2)。在开启扇范围内调整卡件位置,避开人正常视线范围,同时降低卡件高度,在格栅防晃动和减少开窗后对视野影响中取得最佳平衡。

内平开窗原设计为铝板平开窗,为提高开启扇的整体平整度和加工精度,避免室内出现不同基材间喷涂的色差问题,深化设计调整为铝型材开启扇。窗五金及执手均进行隐藏式设计,整体简洁美观。开启扇采用硬度较小的复合发泡胶条,转角位置采用成品转角胶膜,保证平整度同时提高防水性能。为了减少窗框和幕墙龙骨间拼接缝,把窗框与单元横梁及立柱均合并成一个整体模,同时下框位置室外侧挡水板(词条“挡水板”由行业大百科提供)高度加高,加大下框位置的排水槽腔体,下横梁与格栅框挂接位置预留排水长孔,提高开启扇系统整体防排水性能(图8)。

3.3单元连接设计
1)单元抗侧连接设计
单元体横截面为几字形锯齿状,整体龙骨由单元公母立柱、转角处中立柱以及上下插接横梁和中横梁组成(图9),由于锯齿板块凹槽位置存在进深,板块平面内(抗侧移)的稳定性尤其需要重点考虑。常规的设计思路会考虑增加横杆斜撑组成稳定的三角形,考虑到本项目主体结构板亦为锯齿状设计,同时背板仅在玻璃面板(词条“玻璃面板”由行业大百科提供)后方设置,如果采用横杆斜撑进行设计,会存在斜撑外露同时对于现场板块安装也会存在一定的影响。本项目深化设计过程中创新性的提出了抗侧加强型材的设计方案,加强型材位于凹槽一侧层间分格位置,满分格通长布置,其与单元母立柱及转角立柱进行互穿的强连接设计,同时加强型材与板块挂件进行了连接,整体刚度大且力的传递更加直接,另外加强型材可兼做面板作用,通过加工铣缺预留和骨架间打胶凹口,保证防水线贯通,此设计可谓一举多得。(图10.1~10.2)
考虑到凹槽位置母立柱截面较宽,板块挂件设计时采取了增加斜撑板件的结构,加强了立柱在支座位置的侧向支撑,加大立柱自身的抗扭转性能。

2)单元立柱横梁连接设计
本项目几字形锯齿单元横梁与立柱间存在多种角度的变化,设计时一方面为了提高板块连接的刚度和稳定性,保证锯齿板块转角处不形成几何可动,另一方面为了组装过程中能精准定位,控制角度的准确性,单元板块上下横梁与板块立柱间采取了型材组角紧密配合连接的方式,组角与立柱间采用螺钉限位,这种设计不仅单元板块本身连接的可靠性得到了保证,使得上下层板块立柱间传递剪力更直接,同时可以有效保证不同角度板块组装的高精度。上横梁与立柱组角连接详图11.1~11.2,下横梁与立柱组角连接详图12.1~12.2。


单元上下横梁在凹槽转角处为多段拼接设计,为了保证连接位置的可靠,确保几字形锯齿板块在加工组装、吊装的过程都不会发生拼缝开裂导致漏水问题,同时防止锯齿板块在运输过程中发生“劈叉”现象导致拼接缝开裂,设计时在横梁转角拼接位置设置了型材插芯组角(图13.1~13.2),同时在下横梁底部以及上横梁室内侧不可视部位设置不锈钢连接片进行了加强。

3.4板块防排水设计
常规单元板块多采用内排水设计,本项目在深化设计过程中经过了充分调研和对比,基于以下几方面的考虑,采用了外排水的方式。首先,单元板块上横梁存在多段拼接的情况,若采用内排水,拼缝位置即便打了榫口胶,因无法目视检查内部打胶质量,存在很大漏水隐患;其次,内排水拼缝处的榫口胶一旦在运输或者吊装过程中发生开裂现象,由于位于内腔,现场无法处理;最后,上横梁为“几”字形拼接,多道转折绕道,内排水无法保证排水的通畅。
单元板块采用外排水方案,可以目视检查排水孔是否开设到位,同时排水直接,可以保证顺畅。上横梁拼缝处防水密封处理效果好,拼缝位置先打胶密封,外侧加盖胶皮周圈打胶,2道密封防水(图14.1~14.2)。本工程采用外排水,经过了性能测试验证,整体水密性(词条“水密性”由行业大百科提供)能达到规范中分级指标的最高级别5级[1]。(图15)


3.5龙骨结构分析计算
板块为几字形锯齿单元构造,龙骨通过建模整体分析,建立三层模型,模型中龙骨采用型材实际截面,同时考虑凹槽层间加强型材的作用(图16.1~16.2)。与常规平板板块单面受荷不同,锯齿板块风荷载(词条“风荷载”由行业大百科提供)应考虑不同方向的组合作用(图17.1~17.4),经分析龙骨结构整体受力安全可靠,龙骨变形满足规范要求。相对于按简支梁模型计算龙骨变形,模型中整体变形结果更小,侧面验证了锯齿构造板块的平面外变形控制比平板板块更有利。


4、结语
现代建筑随着社会发展和人们审美的不断提升,建筑造型的求新求异给建筑幕墙带来了很大的挑战和机遇。中金大厦作为全球化企业的总部办公大楼,建成后将屹立在城市森林中,向世人展示作为全球一流金融企业的信赖感、成长力和为社会做贡献的姿态。本文所介绍的设计内容,是我们整个设计团队在设计和实践中的一点经验总结,可为今后这类幕墙工程提供设计参考与借鉴。
参考文献:
[1] 《建筑幕墙》,中华人民共和国国家标准,GB/T 21086-2007
[2] 《玻璃幕墙工程技术规范》,中华人民共和国行业标准,JGJ102-2003
[3] 《建筑结构荷载规范》,中华人民共和国国家标准,GB 50009-2012
[4] 《广东省建筑结构荷载规范》,中华人民共和国广东省标准,DBJ 15-101-2014
作者单位:深圳市方大建科集团有限公司